Filling that space in the middle....
While we wait for Mercedes to deliver the chassis, we fill the months of anticipation with planning details and creativity!
By the time November rolled around, our visit to Advanced RV last May was a distant warm memory. We still talked about the motorhome quite often....but there wasn't much to do but wait on Mercedes to deliver the chassis.
Then the phone unexpectedly rang while we were in Missouri.
It was Rob at Advanced RV. Mercedes had started to ship some vans, and although they were not sure when ours would be coming, he was starting on our mechanical drawing and had some additional logistics we needed to consider.
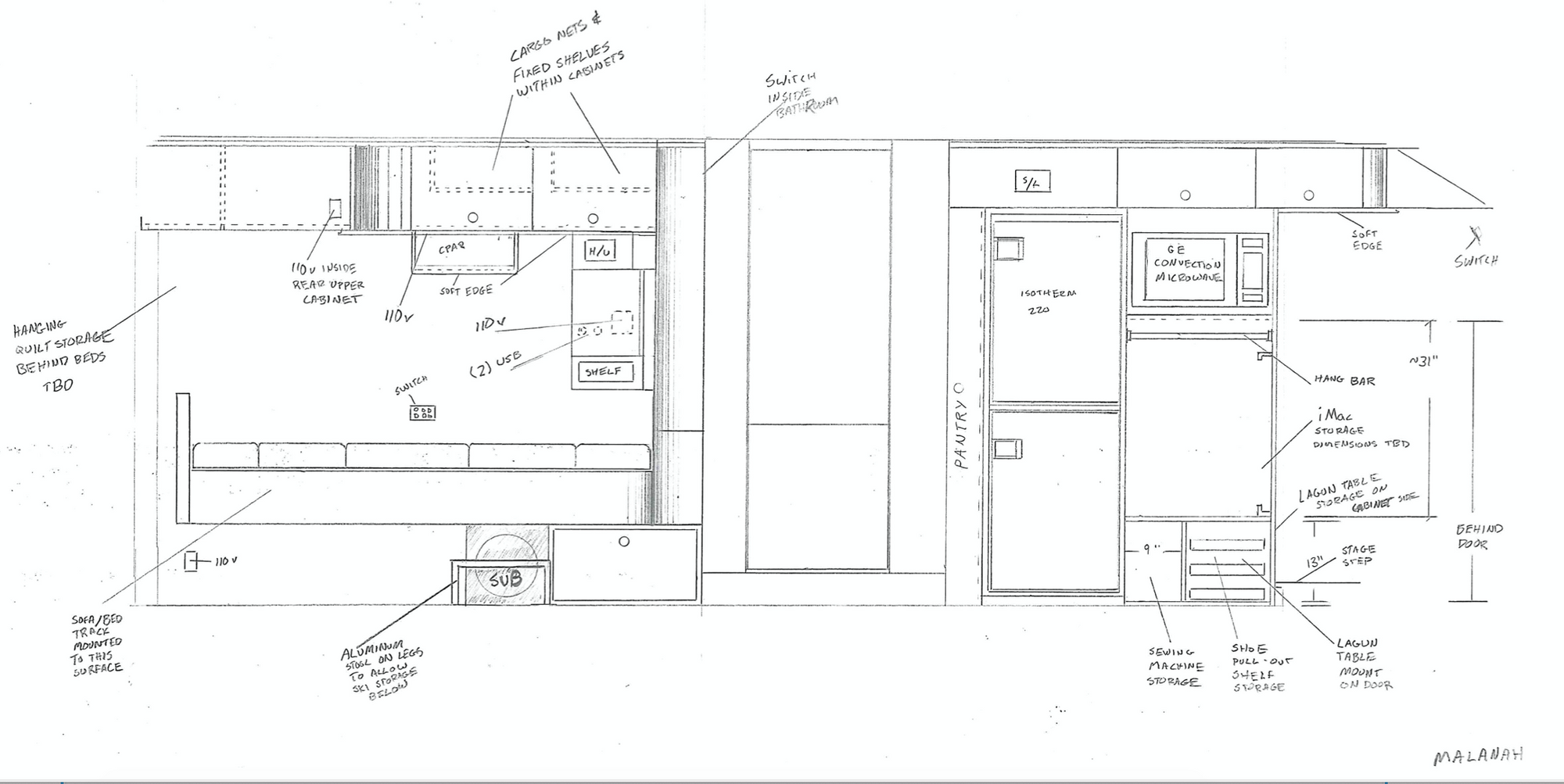
He thinks of all the small working details. A volley of phone calls, emails, and drawings flowed back and forth the next few months.


Have we mentioned Rob's attention to detail? We may have packed the plans inside of our suitcase when we went to see some family..... just to enjoy and share their beauty :)




We finalized the floor, wall, and ceiling materials. We had chosen some materials when we were at Advanced RV, but wanted to look at a few more options. Brittany was fantastic to send us samples from the shop, and even put us in contact with the flooring company to order more samples if needed. Here's the fanfare we settled on.
The logo.... we've been thinking a lot about this one. What Malanah meant to us..... how it felt. We asked Sydney (our graphic designer daughter) to come up with some ideas. We fell in love with this one. It's perfect. And Malanah is even written using Damon's handwriting!
About a week ago the artist rendering showed up in our email. It's beautiful!



It's February, and still no Chassis..... but this project continues to bring us so much joy, anticipation, and awwwwww at the amazing things Advanced RV does.